Marjory House
5 Church Walk
Caterham
CR3 6RT

FREEHOLD 3 BEDROOM HOUSE FOR SALE

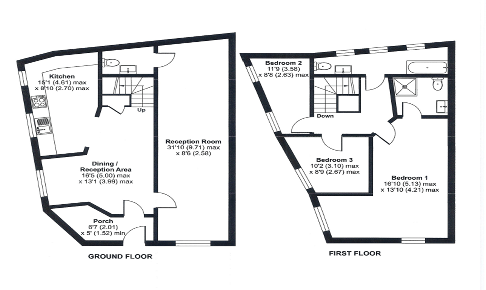
1174 sq ft

Residential 3 Bedroom House

£325,000 FH

Key Features

  • Freehold 3 bedroom house
  • Town centre location close to Railway Station
  • Ideal for investors or owner occupiers
  • Good modernised condition with solar panels
  • To be sold with vacant possession
  • Freehold price £325,000 (subject to contract)

Description

n attractive, town centre, semi-detached freehold 3 bedroom house.

This spacious house has been refurbished to a good standard and comprises an entrance hall, open plan living and dining area, separate kitchen and toilet on the ground floor. The first floor comprises three double bedrooms, a main bathroom together with an en-suite shower room. The entrance is on Church Walk.

The property benefits from solar panels, modern bathroom and kitchen fittings, gas fired central heating and double glazing.

Location

The premises occupy an excellent location within the centre of Caterham Valley which has a wide selection of shops, restaurants and other local amenities. Waitrose, Morrisons and Lidl are all within easy walking distance.

Caterham benefits from good road and rail connections with Junction 6 of the M25 close-by at Godstone. Caterham Mainline Railway Station is a 150m walk providing regular services to Croydon and London.

Terms

We are instructed to seek £325,000 for the freehold, subject to contract. To be sold with vacant possession.

EPC

The property has an EPC Rating of B (84)

The property is within Council Tax band E. For further information in this regard please contact Tandridge District Council.

Viewing

For further information or to view please contact:

Joe Yorke BSc Hons Tel: 01737 222835
Email: joe@raynerscommercial.com

Chris Richards MRICS Tel: 01737 222835
Email: chris@raynerscommercial.com