Maple Farm
Clay Lane
South Nutfield
Redhill
RH1 4EG

FREEHOLD LIGHT INDUSTRIAL / STORAGE PREMISES

5957 sq ft

Light Industrial / Storage

£1,200,000 F/H

Key Features

  • Rare opportunity to purchase a freehold light industrial premises and yard
  • Total site area of 0.76 acres / 3,056 sq.m approx
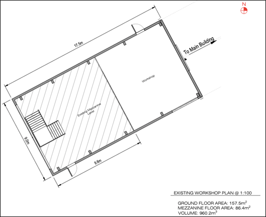
  • Three light industrial / workshop buildings. Total area of 5,957 sq.ft / 553 sq.m
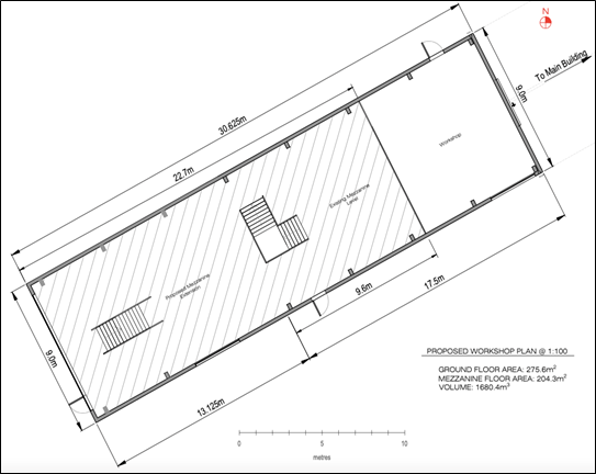
  • Expired Planning consent to extend modern building by 1,240 sq.ft + full Mezz
  • Wide gated access with external hardstanding and parking
  • Freehold Price £1,200,000 (subject to contract).
  • Description

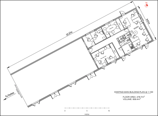
    The premises comprise three light industrial / storage units with offices, good access, yard and parking areas. The largest of the three buildings is of solid brick / block construction under a steel framed profiled metal pitched roof and is currently arranged to provide an open plan workshop area together with refurbished offices, a meeting room, kitchen and toilets.

    A substantial modern extension of steel portal frame construction under a pitched roof and clad with insulated profiled metal sheeting was added about 8 years ago. This relatively new building incorporates a mezzanine storage area and a full height loading door. Planning consent was granted in 2019 to extend this building (now lapsed).

    There is also a further storage building behind these main buildings. The site benefits from 3-Phase electricity. Heating and hot water to the offices is via an oil-fired boiler. Foul drainage is to a septic tank situated on the site.

    Accommodation

    The accommodation and approximate gross internal floor areas are as follows:-
    Main Building 2,747 sq.ft (255.2 sq.m)
    Modern Extension Building 1,656 sq.ft (153.8 sq.m)
    Mezzanine 973 sq.ft (90.4 sq.m)
    Rear Storage building 581 sq.ft (54.0 sq.m)
    Total5,957 sq.ft (553.4 sq.m)
     Outside: Hardstanding, loading & parking areas. Site extends to approximately 0.76 acres / 3,056 sq.m

    Location

    The premises are located in South Nutfield within close proximity to the A25 and A23 which provide quick access to Redhill, Gatwick and the M23 & M25.

    The premises benefit from excellent rail and road connections with easy access to both Junction 9 of the M23 and Junction 7 of the M25. Gatwick Airport is located just 6.5 miles to the South. The property is located within walking distance of Nutfield Railway Station with regular services to East Croydon and London stations via Redhill.

    Terms

    Offers in the region of £1,200,000 are sought for the freehold interest with full vacant possession. Subject to Contract.

    PLANNING

    A January 2019 planning consent was granted (now lapsed) for the erection of a side extension to the existing modern building under ref: TA/2018/1576. It was a condition of the consent that the existing Nissen Hut be demolished. This now lapsed consent would provide an additional area of circa 1,240 sq.ft (115.2 sq.m) and mezzanine storage of 1,240 sq.ft (115.2 sq.m).

    EPC

    EPC is 68C

    Viewing

    For further information or to view please contact:

    Joe Yorke BSc Hons Tel: 01737 222835
    Email: joe@raynerscommercial.com

    Chris Richards MRICS Tel: 01737 222835
    Email: chris@raynerscommercial.com

    VAT

    It is understood that VAT is not applicable to the sale price.