Land at Deans Lane
South Nutfield
RH1 4HW

CONSENTED 4/5 BEDROOM HOUSE WITH 3 ACRES

3.02 Acres / 12,299 Sq.M

Land for Development

£695,000

Key Features

  • Rare opportunity to purchase a consented building plot set in 3 acres of land
  • Total site area of 3.02 acres/ 12,299 Sq.M
  • Planning consent for 4/5 bedroom house – Tandridge DC Ref: TA/2024/329
  • Excellent potential for equestrian usage, dog kennels or similar (subject to consent)
  • Freehold Price £695,000 (subject to contract).
  • Description

    Opportunity to purchase a broadly rectangular greenfield site in an attractive Surrey location.
    The land would be well suited to an owner looking to develop their own house and equestrian facilities or dog kennels or similar (subject to any necessary consents).
    The local area is renowned for its pretty Surrey countryside and offers extensive walking and riding. The existing planning consent relates to an area of concrete hard standing towards the northwest corner of the site.

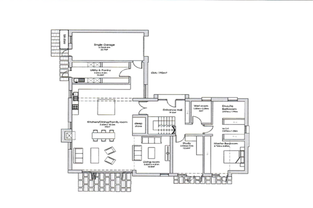
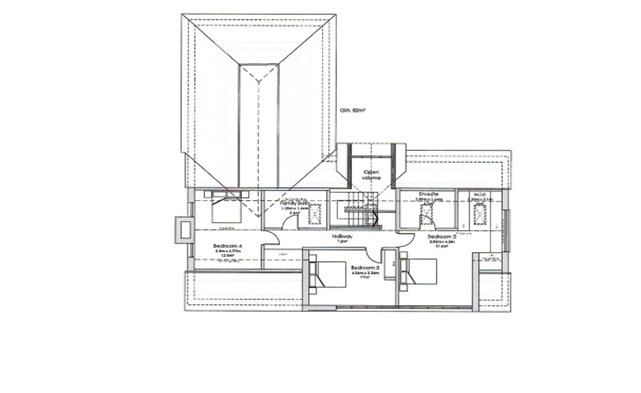
    Accommodation

    The consented house provides an open plan kitchen, dining and living room together with master bedroom, ensuite bathroom, wet room, study, utility room and garage on the ground floor. The first floor provides 3 further bedrooms and 2 further bathrooms. The gross internal floor areas are:

    Ground Floor 2,045 sq.ft 190 sq.m
    First Floor 883 sq.ft 82 sq.m
    Total 2,928 sq.ft 272 sq.m

    The Site extends to approximately 3.02 acres / 12,299 sq.m

    Planning

    Planning consent was granted on 11 July 2024 for change of use of land from Class B8 (open storage and parking) to Class C3 (residential) and erection of detached dwelling with associated parking, entrance gates and amenity space under ref: TA/2024/329 (Tandridge District Council).

    Location

    Offers in the region of £695,000 are sought for the freehold interest with full vacant possession. Subject to Contract.

    Terms

    Offers in the region of £695,000 are sought for t
    he freehold interest with full vacant possession. Subject to Contract.

    Viewing

    For further information or to view please contact:

    Joe Yorke BSc Hons Tel: 01737 222835
    Email: joe@raynerscommercial.com

    Chris Richards MRICS Tel: 01737 222835
    Email: chris@raynerscommercial.com

    VAT

    It is understood that VAT is not applicable to the sale price.