Ground Floor
282-284 Brigstock Road
Thornton Heath
London CR7 7JE

CLASS F COMMUNITY PREMISES

1910 sq ft

Class F / Community Use

£575,000

Key Features

  • Ground floor Class F Community premises for sale
  • Virtual freehold 999 year lease
  • To be sold with vacant possession
  • Suitable for a variety of Class F and other community uses
  • Situated close to Thornton Heath centre
  • Good transport links
  • Total internal area 1,910 sq.ft (177.44 sq.m)
  • Price £575,000 (subject to contract)

Description

A virtual freehold Class F community premises suitable for a variety of uses (subject to planning).
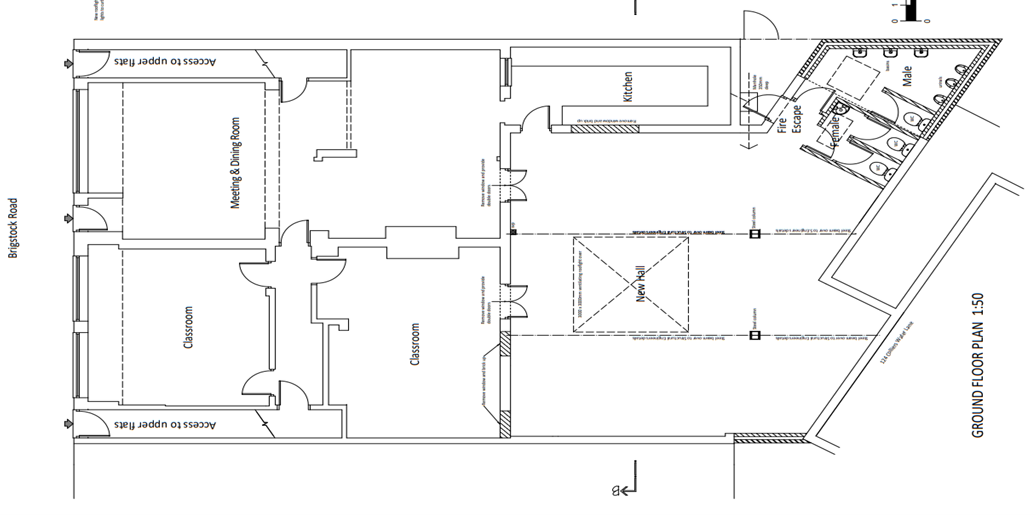
The premises comprise a large ground floor double fronted unit with good prominence to Brigstock Road. The accommodation is currently arranged to provide a number of spacious rooms / halls together with a large kitchen and ancillary storage. There is an enclosed courtyard to the rear of the property.

The property has recently been refurbished and benefits from gas fired central heating, LED lighting, laminate wood effect flooring and UPVC double glazed windows. The newly refurbished male and female toilets are accessed from the rear courtyard.
The forecourt immediately in front of the property is included. There is some unrestricted on-street parking directly in front of the premises and in surrounding roads.

Location

Thornton Heath is a vibrant and well-connected area of South London, providing a wide range of amenities, retail and restaurant options.
The premises are situated just off the A23 Thornton Road, with Thornton Heath centre a short walk away. Croydon town centre is just 2 KM to the South.

Thornton Heath benefits from excellent road and rail connections with the M23 and Junction 7 of the M25 accessible via the A23. There is a Mainline Railway Station (Zone 4) providing regular services to East Croydon and Central London.

Terms

Price £575,000 (subject to contract)

The property is held on a 999 year lease from 1st November 2017 at a peppercorn ground rent.

 

EPC

This property has an EPC rating of C (75)

Viewing

For further information or to view please contact:

Joe Yorke BSc Hons Tel: 01737 222835
Email: joe@raynerscommercial.com

Chris Richards MRICS Tel: 01737 222835
Email: chris@raynerscommercial.com

VAT

We understand VAT is not applicable to the sale price.