8 Croydon Road
Caterham
CR3 6QB

CLASS E /RESTARAUNT

2371 sq ft

Class E / Restaurant/ Retail

£34,000 pa

Under Offer

Key Features

  • Restaurant / Class E premises to let
  • Excellent town centre location, close to all amenities
  • Close to M25 Junction 6 and Caterham Railway Station
  • Total net internal area 2,371 sq.ft (220.27 sq.m)
  • New lease available at £34,000 per annum exclusive
  • Kitchen equipment, fixtures and fittings by separate negotiation

Description

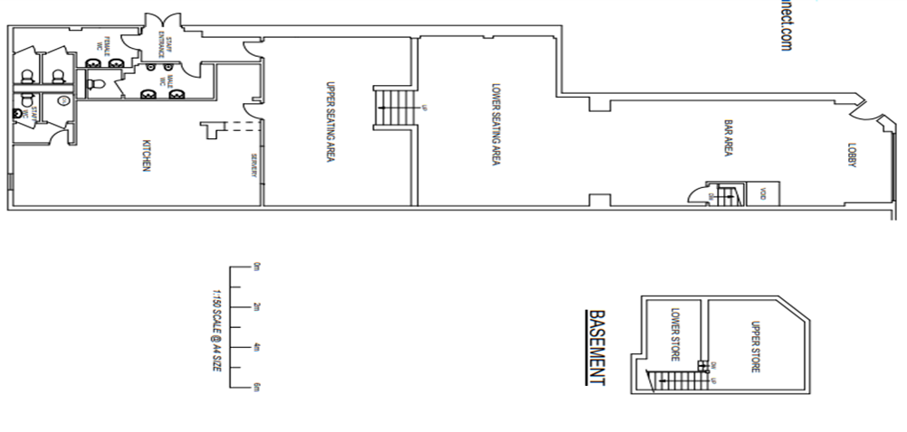
Large ground floor and basement Class E restaurant premises with a rear kitchen and separate male and female WC facilities.

Accommodation

The accommodation and net internal floor areas are as follows:

Main Restaurant 1,161 sq.ft 107.86 sq.m
Upper Seating Area 458 sq.ft 42.55 sq.m
Kitchen 470 sq.ft 43.66 sq.m
Basement storage 282 sq.ft 26.20 sq.m
Total 2,371 sq.ft 220.27 sq.m

Location

The property occupies an excellent location within the centre of Caterham Valley close to a good selection of shops, restaurants and other local amenities. Caterham benefits from good road and rail connections with Junction 6 of the M25 close-by at Godstone. There is also a Mainline Railway Station within easy walking distance providing regular services to Croydon and London.

Terms

The premises are available to let on a new full repairing and insuring lease for a term to be agreed at an initial rent of £34,000 per annum exclusive.

Interested parties should note that the kitchen equipment, appliances, fixtures and fittings are available from the outgoing tenant by way of separate negotiation. Further details upon request.

Subject to contract

EPC

To be assessed

Viewing

For further information or to view please contact:

Joe Yorke BSc Hons Tel: 01737 222835
Email: joe@raynerscommercial.com

Chris Richards MRICS Tel: 01737 222835
Email: chris@raynerscommercial.com

VAT

We understand that VAT is not applicable to the rent.