38/38a Croydon Road
Caterham
CR3 6QB

RETAIL/RESIDENTIAL INVESTMENT

526 sq ft

Retail & Residential Investment

£410,000

Key Features

  • Freehold mixed-use retail & residential investment
  • Prime town centre location
  • Ground floor shop let to Samos Records Ltd
  • Shop rent £14,500 per annum from January 2025
  • Spacious split-level, self-contained 4-bed flat
  • Flat producing £18,000 per annum
  • Freehold price £410,000 (subject to contract)
  • Rear parking
  • No Vat

Description

An attractive mixed-use, prime town centre investment.

The premises comprise a substantial, three storey building together with rear garden, external store and parking.

The ground floor retail unit, trading as Samos Records, has been fitted out to a good standard with wood-effect laminate flooring, LED lighting and air conditioning, together with a modern kitchen / store and toilets to the rear.

 

Accommodation

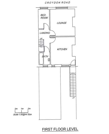
The flat is fully self-contained and can be accessed from either Croydon Road at the front or from the service road, off Colin Road at the rear. The flat comprises a living room, kitchen, bedroom / study and bathroom on the first floor and three further bedrooms and a toilet on the second floor. The flat also has use of the rear garden and external store.

There is a parking area accessed from the rear service road, off Colin Road, where both the shop and flat have the right to park one vehicle.

Location

The premises occupy an excellent location within the centre of Caterham Valley which has a wide selection of shops, restaurants and other local amenities.

Caterham benefits from good road and rail connections with Junction 6 of the M25 close-by at Godstone. There is also a Mainline Railway Station within easy walking distance providing regular services to Croydon and London.

 

Terms

We are instructed to seek £410,000 for the freehold, subject to contract.

Gross Initial yield 7.93%

Tenure

Freehold. Interested parties should note that the shop and flat are currently held under separate titles by our client. The flat is freehold with the shop is subject to a long lease.

Viewing

For further information or to view please contact:

Joe Yorke BSc Hons Tel: 01737 222835
Email: joe@raynerscommercial.com

Chris Richards MRICS Tel: 01737 222835
Email: chris@raynerscommercial.com

VAT

We understand that VAT is not applicable to the sale price.